Startseite
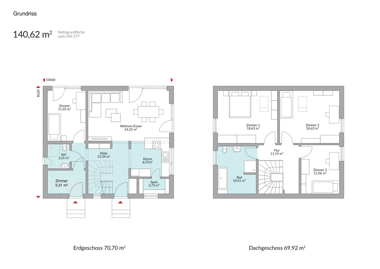
Grundriss
Bilder
Betriebskosten
Kontakt
Einfamilienhaus zu vermieten
Überlingen-Deisendorf
Grundriss